编码器专栏

当前位置:首页 < 新闻中心 < 行业动态 < 编码器专栏 < 集成超速开关的编码器,重载型,可以控制电机的速度,不是新产品,行业应用已多年,超稳定运行

集成超速开关的编码器,重载型,可以控制电机的速度,不是新产品,行业应用已多年,超稳定运行

文章来源:开地电子原创  发布时间:2020/01/15    点击数:

在工业场景中,经常会遇到需要监测位移及需要控制电机的超速运行的情况,解决电机超速运行,维持机器的长期,高效的运行的难题,单纯的编码器是无法满足应用中的需求的。为了满足应用这类场景中顾客应用的需求,雷恩研制了集成超速开关的编码器。能监测电机的位移以及控制电机的速度。

这款集成了超速开关的编码器,从研制应用已经有10多年了,在应用领域超稳定运行,属于雷恩重载系列,具体型号:RCO 115 + E01。目前发现这款编码器,性价比高,方便维护,产品的设计注重应用实用性。

下面来了解一下这款编码器:

集成了离心开关,控制电机的超速运行

集成离心开关,可以控制电机超速运行,对800-4500rpm范围的速度实现有效的控制。

增量式输出:

输出有A、A-、B、B-、Z、Z-,其中输出A、B两相互差90°电度角的脉冲信号(即所谓的两组正交输出信号),从而可方便地判断出旋转方向。同时还有用作参考零位的Z相标志(指示)脉冲信号,码盘每旋转一周,只发出一个标志信号。标志脉冲通常用来指示机械位置或对积累量清零。

更长的信号输出距离:

TTL/RS422:长线驱动,强大的抗干扰能力,长距离信号传输可以达到550M,常规的长线驱动的信号传输距离大概在150M。

HTL-P推挽式,同时支持PNP与NPN控制电路。电源电压范围在5到30V均可。信号输出距离在350M,常规推挽式输出信号传输距离在300M。

带有冗余感测终端:

在可靠性方面,法国雷恩重载型编码器-超速开关RCO 115 + E01,设计了2-3个感测终端盒,为了提高系统的可靠性能。

特别适合重载应用场景:

盲孔设计,轴径可满足12-25mm,安装法兰直径115mm,轴向载荷450N,径向载荷600N。防护等级德标到达IP65,工作温度-40…+ 85°C。

优点:

集成了超速开关

高分辨率

TTL传输可达550米

特点:

TTL输出驱动,线缆长度可以达到550米

基于离心力的机械转速监测

耐用的混合轴承,更长的使用寿命

可旋转180度终端盒

可选项:

EMS功能控制、加强监测系统

带有两个终端盒的冗余感测

可耐-50°C低温环境

技术数据-电气额定值

轴绝缘电压 2.8KV
传输距离 HTL-P 100KHz≤350米 TTL 100KHz≤550米
EMC:发射干扰 EN 61000-6-3
EMC:抗干扰: EN 61000-6-2
认证 CE

技术参数-电气额定值(编码器)

电源电压 9...26 VDC 5 VDC ±5 %
负载消耗W/O ≤100 mA
每转脉冲 100...10000
相移 90° ±20°
扫描比 40...60 %
参考信号 0值 宽度
输出频率 ≤120khz ≤300khz(可选)
输出信号 A, B, Z +反转
信号接口< HTL-P (power linedriver) TTL/RS422
技术 光学

技术数据-机械设计

尺寸(法兰) ø115毫米
轴径 ø12...25 mm (盲孔)
轴载荷 ≤450 N 轴向 ≤600 N 径向
防护等级德标EN 60529 IP 65
转速(n) ≤1.25 · ns
开关速度范围(ns) 850……4500rpm (Δn = 2 rpm/s)
操作扭矩 6Ncm
转子转动惯量 400gcm2
材料 外壳铝合金 轴不锈钢
工作温度 -40…+ 85°C -25……+85°C(>3072脉冲每秒圈)
电阻 IEC 60068-2-6 振动5g, 10- 2000hz IEC 60068-2-27 电击50克,11毫秒
连接 终端盒3x终端盒>M可选)

体重约

2.2公斤、2.4公斤(附选项M)


技术参数电气额定值(离心式开关)

开关精度 ±4%(Δn = 2转/秒);≤20%(Δn =1500转/秒)
开关偏差cw-ccw旋转 ≤3 %
开关迟滞率 约为开关速度的40%
开关输出 1输出,速度控制
输出开关容量 ≤6a / 230 VAC;≤1 A / 125 VDC
最小开关电流 50毫安

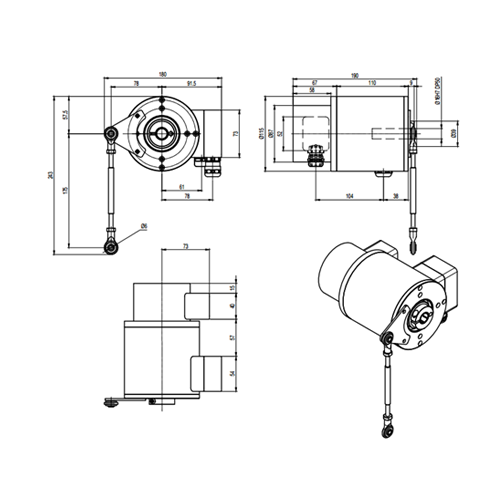
技术图纸:

版权所有© :上海开地电子有限公司   电话:021-5268 2679   传真: 021-5268 2869   邮箱:sales@kindele.com

总部地址:上海  普陀区 怒江北路598号2108室(红星世贸大厦) 备案号:沪ICP备08012286号-1        

上海开地提供各类测速电机光电编码器、旋转编码器、倾角传感器、绝对值编码器、超速开关增量式编码器、英国芬纳(Fenner)等产品,是RADIO-ENERGIE、POSITAL、ELTRA授权代理商。


百度统计

沪公网安备 31011402003605号

My title page contents